Antaaye Arch Estate

Country Homes Naukuchiatal

Country Homes Naukuchiatal

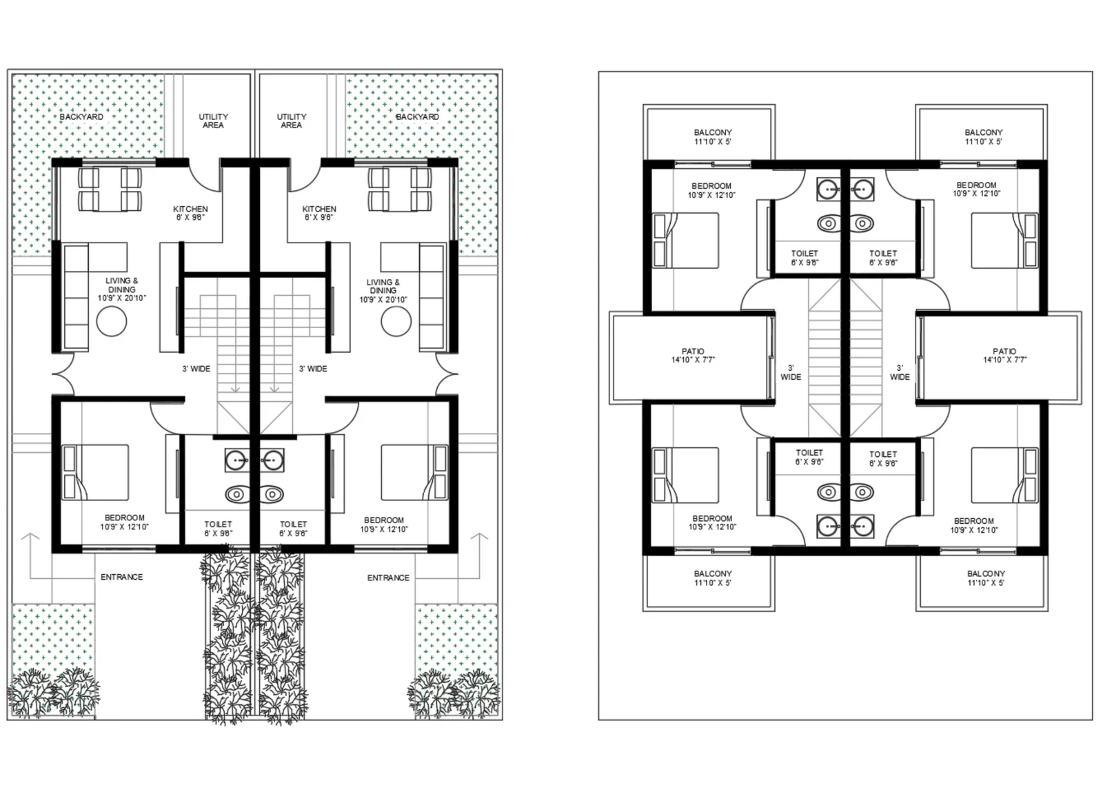
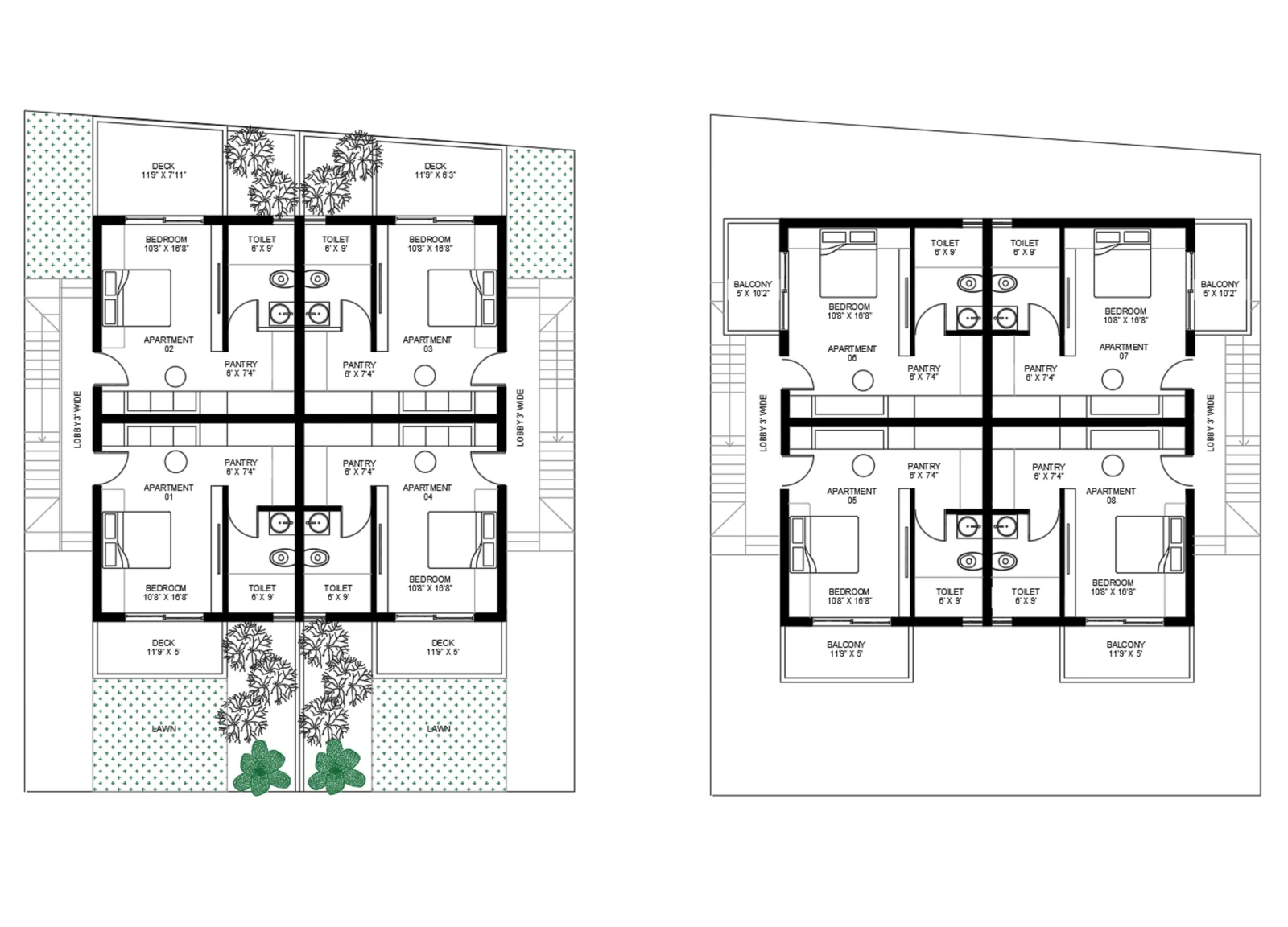
A nature-integrated, site-sensitive design approach with careful plotting and a seamless blend of hospitality and living. The master plan focuses on efficient zoning, smooth circulation, well-placed residences, shared amenities, parking, and thoughtfully designed open landscapes.

Our “VISION”

This project is designed to blends contemporary resort living and studios with privacy, while bringing in nature, light, and warmth offering an eco-conscious lifestyle for all age groups.
Location : Uttarakhand
Status : Ongoing
Area : 8200 sqm
Type : Residential

Elevate Your Space Luxuriously

Experience bespoke interior design that blends luxury, comfort, and timeless elegance into every corner of your home