Antaaye Arch Estate

The Calm House

The Calm House

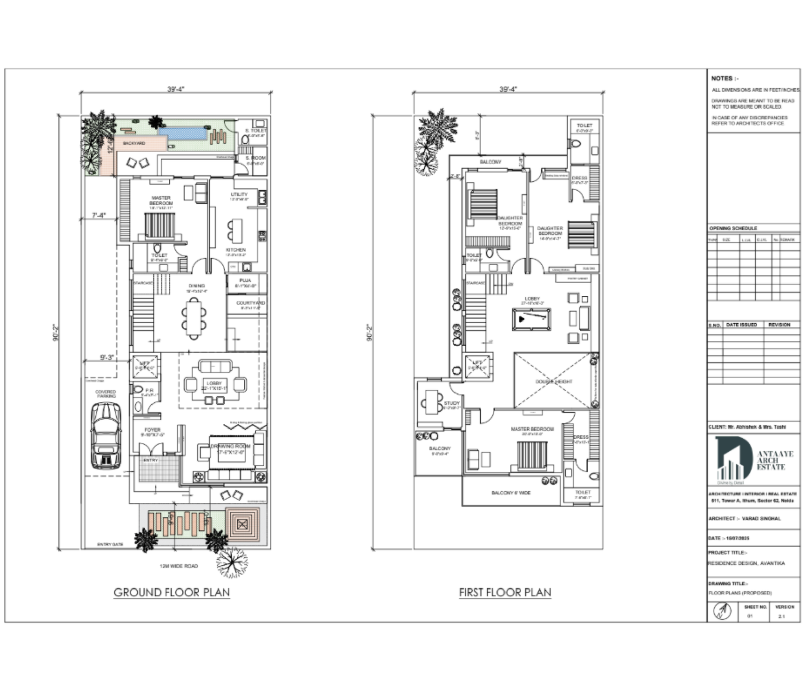
This thoughtfully planned home for four adults and two children includes four bedrooms, a study, living, dining, kitchen and puja spaces, along with a gym, party hall, store, courtyard, lawns, green areas, double-height spaces, and a lift.

Our “VISION”

“This home is designed to blend openness and privacy for a multi-generational lifestyle, while bringing in nature, light, and warmth through courtyards and materials..”
Location : Ghaziabad, UP
Status : Ongoing
Area : 7000 sqft
Type : Residential

Elevate Your Space Luxuriously

Experience bespoke interior design that blends luxury, comfort, and timeless elegance into every corner of your home