Antaaye Arch Estate

The Urban Hub

The Urban Hub

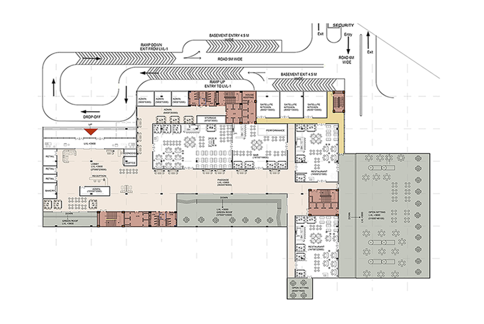
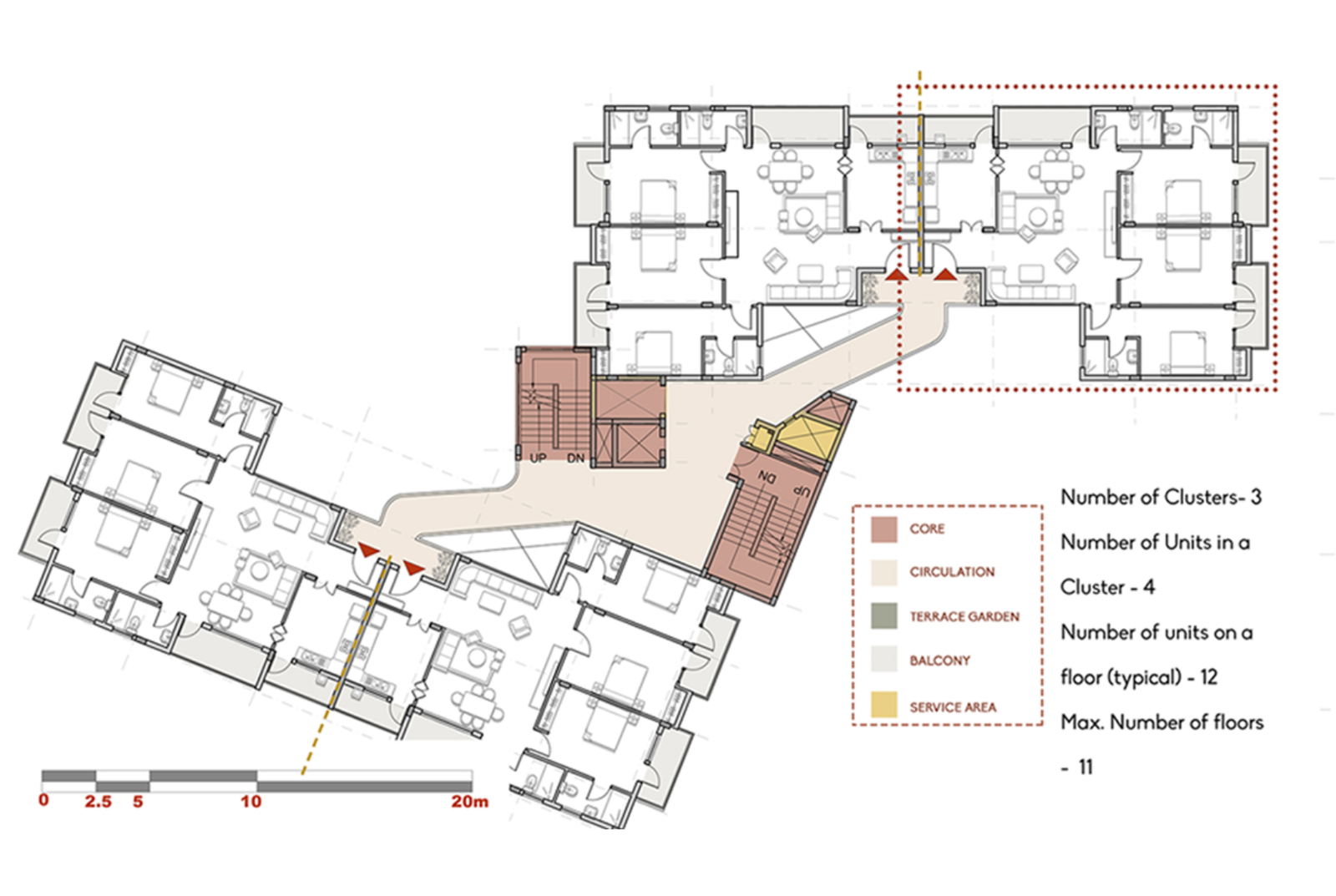
The Urban Hub at Hauz Khas is a transformative mixed-use development spanning 11 hectares, seamlessly integrating retail, commercial spaces, offices, hotels, and housing. Designed to revitalize the market precinct, the project introduces distinct zones that blend functionality with vibrant urban living.

Green spaces are thoughtfully woven into the site, connecting to the broader city-level greens and creating a harmonious balance between built and natural environments.

Location : New Delhi
Status : Proposed
Area : 27 Acre
Type : Mixed Use

Elevate Your Space Luxuriously

Experience bespoke interior design that blends luxury, comfort, and timeless elegance into every corner of your home